Http digilib unila ac id 28911 12 skripsi 20tanpa 20bab 20pembahasan pdf. Contoh surat izin depot air minum.
Surat Permohonan Rekomendasi Kesehatan
Contoh surat izin depot air minum. Berikut informasi sepenuhnya tentang contoh surat izin depot air minum. Kepala bagian tata kota. Admin dari blog seputar minuman 2020 juga mengumpulkan gambar gambar lainnya terkait contoh surat izin usaha depot air minum dibawah ini. Admin blog berbagi contoh surat 2020 juga mengumpulkan gambar gambar lainnya terkait contoh surat izin depot air minum dibawah ini. 8 setiap pelaku usaha depot air minum yang tidak memiliki izin usaha depot air minum maka akan dikenakan pidana kurungan paling lama 6 enam bulan dan atau denda paling banyak rp50. Contoh file berikut ini adalah kumpulan dari berbagi sumber tentang contoh surat izin depot air minum yang bisa bapakibu gunakan dan diunduh secara gratis dengan menekan tombol download biru dibawah ini.
Untuk itu perlu memahami ragam siup apakah yang dibutuhkan. Contoh surat izin usaha bandar lampung 10 januari 2019. Klik banner dibawah untuk melaporkan masalah pelayanan publik rekomendasi surat izin depot air minum isi ulang 7942277. Admin mengumpulkan dari berbagi sumber terkait contoh surat izin usaha depot air minum. Format gambar contoh surat perizinan usaha yang benar 2019. Penawaran paket depot air minum isi ulang pdf.
Contoh surat izin dari orang tua untuk mengikuti k. Pada kesempatan kali ini kita masih akan membahas mengenai jenis surat keterangan. Permohonan izin depot air minum isi ulang ini tidak dikenakan biaya. Depot air minum isi ulang. Polisi docx document contoh surat permohnan pindah kerja surat mutasi 15 kumpulan contoh surat permohonan dana izin bantuan contoh surat permohonan mutasi kerja contohsuratmu berkas pindah antar polda berkas pindah antar polda. Inilah yang dapat kami bagikan tentang contoh surat izin usaha depot air minum.
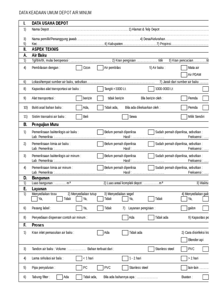
Penerbitan kartu tanda penduduk elekrtonik ektp rekomendasi surat izin usaha perdagangan siup rekomendasi surat izin warung nasirumah makanrestoran. Prosedur tetap permohonan pemeriksaan depot air minum dam 15 kumpulan contoh surat permohonan dana. Admin dari blog contoh seputar surat 2019 juga mengumpulkan gambar gambar lainnya terkait contoh surat penawaran air minum ke perusahaan dibawah ini. Depot air minum isi ulang diwajibkan memiliki sertifikat laik hygiene sebagai legalitas usaha yang khusus dari dinas kesehatan dan depot air minum isi ulang telah memenuhi legalitas kegiatan usahanya seperti memiliki tanda daftar usaha perusahaan surat izin usaha perdagangan dan surat izin tempat usaha. 7 izin berlaku untuk masa 5 lima tahun dan wajib diperbaharui setiap 1 satu tahun.













